Wohneinheitenfläche
Um 139 m²
Grundstücksfläche
Um 215 m²
Baujahr
Baujahr 2020
Anzahl der Zimmer
5 Räume (4 Schlafzimmer)

Laan van Luxemburg 4 B

4701 CB, Roosendaal (Noord-Brabant)

Wonen in een jonge, energiezuinige woning uit 2020 én binnen vijf minuten in het centrum van Roosendaal? Het kan aan de Laan van Luxemburg 4B. Deze fijne gezinswoning combineert modern wooncomfort met een ideale ligging. Je woont hier rustig, maar toch met alles binnen handbereik. Thuis geniet je van een luxe keuken, stijlvolle badkamer, vier slaapkamers, een zonnige tuin én twee eigen parkeerplekken, waarvan één met laadpaal. Ben je op zoek naar een moderne woning waar je zó in kunt? Plan dan snel die bezichtiging in!

Vorspeise
Voor de woning ligt een onderhoudsvriendelijke voortuin, leuk aangekleed met palmbomen die direct een relaxte sfeer geven. Via de voordeur stap je de nette hal binnen met toegang tot het toilet, de meterkast, trap naar boven en natuurlijk de deur naar de woonkamer.

Wohnen & Kochen
De woonkamer is heerlijk ruim, met een moderne uitstraling dankzij de donkere plavuizenvloer en strakke lichte wanden. Het zitgedeelte bevindt zich aan de tuinzijde met openslaande deuren naar buiten. Tussen de keuken en woonkamer is plek voor een royale eettafel, perfect voor gezellige diners. Fijn detail: er is een handige trapkast én een airco die voor verkoeling zorgt in de zomer. De keuken bevindt zich aan de voorzijde van de woning en is een echte eyecatcher. Donkere kleuren, een modern kookeiland met bar, en natuurlijk luxe apparatuur zoals een Bora kookplaat, oven, combi-oven, koelkast, vriezer, vaatwasser en Quooker. Een droom voor elke kookliefhebber!

Schlafen, Träumen und Duschen
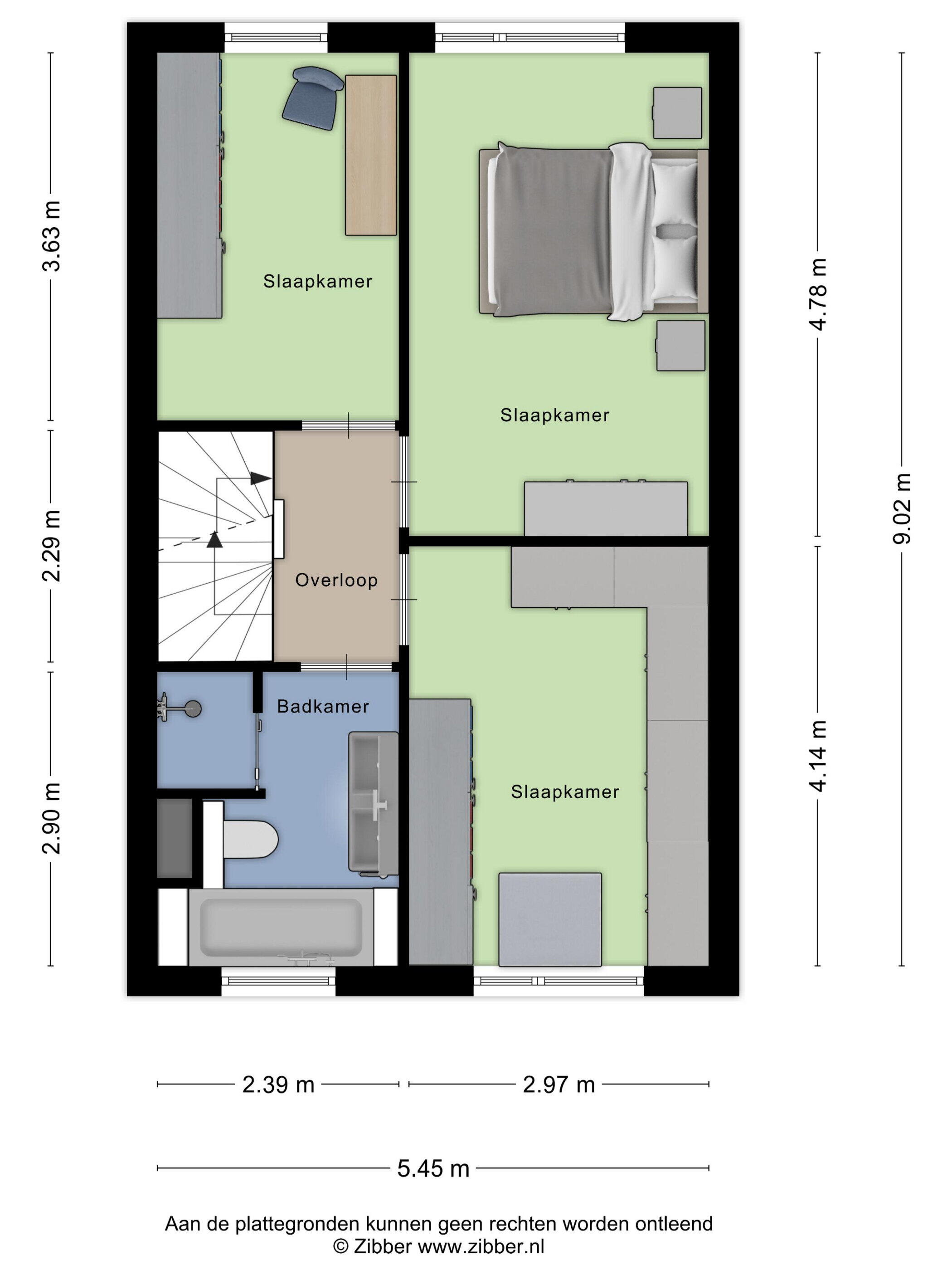
Via de nette trap kom je op de eerste verdieping. Hier vind je drie volwaardige slaapkamers, allemaal strak afgewerkt met plavuizenvloer en lichte wanden. De master bedroom aan de achterzijde is extra ruim, voorzien van airco en biedt voldoende plek voor een groot bed en kledingkast. Ook de andere twee slaapkamers zijn ideaal als kinderkamer, kantoor of logeerkamer. De badkamer is stijlvol en modern met donkere tegels, een ligbad, ruime inloopdouche met inbouwkranen én handige plankjes, dubbele wastafel met meubel en een tweede toilet.

Zweite Etage
De vaste trap brengt je naar de zolderverdieping: een grote open ruimte die perfect kan dienen als vierde slaapkamer, hobbyruimte of thuiskantoor. Er is een dakraam voor natuurlijk licht én aansluitingen voor wasmachine en droger.

Gärtnern, Sonnenbaden & Genießen
De achtertuin is modern en onderhoudsvriendelijk aangelegd. Direct aan de woning ligt een betegeld terras voor een gezellige loungeplek, verderop een grasveld, plantenborders en houten schuttingen voor de nodige privacy. Achterin vind je een houten berging met overkapping, perfect voor een sfeervolle zithoek of extra opslag. Via de achterom en poort bereik je de eigen parkeerplekken, waarvan één met laadpaal.

Duurzaam wonen op een toplocatie
Deze moderne woning ligt in een jonge, rustige wijk op loopafstand van het bruisende centrum van Roosendaal. Binnen vijf minuten wandel je naar winkels, gezellige horeca, scholen en het openbaar vervoer. Een unieke combinatie van comfort en gemak: centraal wonen zonder in te leveren op rust en ruimte. De woning zelf is tot in de puntjes afgewerkt en voorzien van alle moderne gemakken. Denk aan 25 zonnepanelen, rolluiken voor extra comfort en privacy én maar liefst twee eigen parkeerplekken op het afgesloten terrein achter de woning, waarvan één met laadpaal. Ideaal dus voor wie al elektrisch rijdt, of dat van plan is. Voor de parkeerplaatsen is een VVE actief. De kosten hiervoor bedragen €39,- per maand.

Erklärungsclause NEN2580:
Die Messanweisung basiert auf der NEN2580. Die Messanweisung soll eine einheitlichere Messmethode einführen, um einen Indikator für die Nutzfläche zu geben. Die Messanweisung schließt Unterschiede in den Messergebnissen nicht vollständig aus, beispielsweise durch Interpretationsunterschiede, Rundungsfehler oder Einschränkungen bei der Durchführung der Messung.

Planansichten

Übertrag

Verhandlungspreis
475.000,- EUR
Status
verfügbar
Hinnehme
Im Gespräch

Bau

Gegenstandsart
Einzelhaus, Eckwohnung
Bauart
Existierende Bauwerke
Baujahr
2020
Dachart
Dach First mit Schindeln bedeckt

Oberfläche und Inhalt

Wohneinheitenfläche
139 m²
Grundstücksfläche
215 m²
Inhalt
492 m³
Außenbereich
7 m²

Einteilung

Anzahl der Zimmer
5 Räume (4 Schlafzimmer)
Anzahl der Badezimmer
1 Badezimmer
Badezimmerausstattung
Whirlpool, Toilette, Dusche, Doppelspülbecken
Anzahl der Wohnetagen
3 Wohnetagen
Maßnahmen
Mechanische ventilatie, rolluiken, airconditioning, glasvezel kabel, zonnepanelen

Energie

Energietag
A
Energietag-Register
16-12-2019
Isolation
Dachisolierung, Wandisolierung, Fußbodenisolierung, Doppelleiterglas, HR-Glas
Heizung
Heizkollektor, teilweise Fußbodenheizung, Wärmepumpe
Warmes Wasser
Brennkessel
Kessel
Intergas Combikessel Gas 2020 (Eigentum)

Außenraum

Lage
Im Stadtzentrum, in einer Wohngegend
Garten
Hintergarten, Vorgarten

Bergspace

Schleifwerkstatt / Lager
Einzelfertige Holllager

Garage

Garagenart
Keine Garage

Parkplatz

Parkplatzart
Auf eigenen Grund

Energieverbrauch ein Roosendaal

Energietag der Wohnung

Energielabel A

Energietagmenteil: 16-12-2019

Jahres-Stromverbrauch

2970 kWh

(Durchschnitt Winkelhaus in Roosendaal)

Gaskonsum pro Jahr

1280 m³

(Durchschnitt Winkelhaus in Roosendaal)

* Zahlen stammen vom CBS und sollen als Indikatoren dienen und können für diese Wohnung unterschiedlich sein

Hypothekenbelastungen

Eigene Einlage:
Ersparnisse / Überwert

Zins:
Niedrigste 10-Jahres-Zinssatz

Niedrigste 10-Jahres-Zinssatz

2,88% - Centraal Beheer Groen... - NHG


3,15% - Centraal Beheer Groen... - 80%

Niedrigste 20-jährige Zinssatz

3,19% - Centraal Beheer Groen... - NHG


3,57% - Argenta Groen Hypothee... - 80%

Niedrigste 30-jährige Zinssatz

3,34% - Centraal Beheer Groen... - NHG


3,74% - Argenta Groen Hypothee... - 80%


Hypothek:

Bruttomonatslasten: € 0 p/m

Nettomonatskosten: € 0 p/m

Wie berechnen wir dies?

Der Zinssatz basiert auf dem niedrigsten 10-jährigen Festzins für einen einzelnen Hypothekenteil. Der angegebene Zinssatz (3.15% zonder NHG) wurde am 12-12-2025 überprüft. Diese Berechnung basiert auf einer Annuitätenhypothek, die vollständig zurückgezahlt wird, wobei die monatlichen Zahlungen während der gesamten Laufzeit gleich bleiben. Der tatsächliche Zinssatz und die monatlichen Nettokosten können je nach Ihrer persönlichen Situation und dem Hypothekengeber variieren. Wenden Sie sich für eine genaue Berechnung und Beratung an einen Finanzberater. Aus dieser Berechnung können keine Rechte abgeleitet werden; sie dient lediglich als Orientierung.

Sonnengrenzen betrachten

Bewohner von Roosendaal

Zahlen für Postleitzahl-Region 4701

Gesamtbevölkerungszahl
6305 Bewohner
Männer
51%
Frauen
49%

Bewohner von Roosendaal

Zahlen für Postleitzahl-Region 4701

bis 15 Jahre
9%
15 bis 25 Jahre
10%
25 bis 35 Jahre
28%
45 bis 65 Jahre
28%
65 und älter
25%

Haushalte von Roosendaal

Zahlen für Postleitzahl-Region 4701

Einpersonig ohne Kinder
55%
Erwachsene ohne Kinder
28%
Haushalte ohne Kinder
83%

Haushalte von Roosendaal

Zahlen für Postleitzahl-Region 4701

Haushalte mit einem Kind
6%
Haushalte mit mehreren Kindern
11%
Haushalte mit Kindern
17%

Wohnungen in Roosendaal

Zahlen für Postleitzahl-Region 4701

Wohnungen vor 1945
36%
Wohnungen zwischen 1945 und 1965
15%
Wohnungen zwischen 1965 und 1975
4%
Wohnungen zwischen 1975 und 1985
8%
Wohnungen zwischen 1985 und 1995
11%

Wohnungen in Roosendaal

Zahlen für Postleitzahl-Region 4701

Wohnungen zwischen 1995 und 2005
15%
Wohnungen zwischen 2005 und 2015
9%
Wohnungen nach 2015
2%
Mietwohnungen
50%
Eigentumswohnungen
50%

Sonstige Einzahlungen Roosendaal

Zahlen für Postleitzahl-Region 4701

Durchschnittliche WOZ-Wert
€ 195.000,-
Personen unter 65 Jahren mit Hinterbliebenengeld
9%

Sonstige Einzahlungen Roosendaal

Zahlen für Postleitzahl-Region 4701

Adressen pro Quadratkilometer
2901
Urbanität (Skala von 1 bis 5)
100%
Postcode kaart 4701 Gemeente kaart roosendaal

Falls Sie Fragen haben oder eine Besichtigung planen möchten, können Sie das Formular rechts verwenden. Danach wird Ihnen kurzfristig jemand kontaktieren.

Fachidioten mit einer Leidenschaft für Immobilien

Bei C&R Makler dreht sich alles um dich und dein Haus. Wir sind eine frische, lebendige Generation von Immobilienmaklern mit Begeisterung für Menschen und den Immobiliensektor.

Wir glauben an einen persönlichen Ansatz ohne Firlefanz: ehrlich, transparent und immer mit einer ordentlichen Portion Enthusiasmus. Das Verkaufen deines Hauses ist ein wichtiger Schritt, und daher begleiten wir dich auf eine Art und Weise, die zu dir passt, von Anfang bis Ende.

Mit unserem umfassenden Wissen über den lokalen Markt geben wir Ihnen wertvolle Beratung an, die perfekt zu Ihrer Situation und der potenziellen Käufer passt.

Darüber hinaus steht unser kreatives Team von Immobilien-Marketeern bereit, dein Haus in den Fokus zu rücken. Mit klugen und durchdachten Strategien sorgen wir dafür, dass dein Haus auffällt und das maximale Ergebnis erzielt.

Deine Zufriedenheit ist unser Endziel. Wir setzen alles daran, deine Erwartungen zu übertreffen. Neugierig auf unser Team? Klicke auf den Button unten und stelle dich ihnen vor!

Fachidioten mit einer Leidenschaft für Immobilien
Reviews C&R Makelaars

Laan van Luxemburg 4 B, Roosendaal

475.000,- EUR - Verfügbar